Victoriameer 109, Amersfoort
Via de website IK-ZOEK.de-Alliantie.nl kun je reageren op deze woning tot en met donderdag 23 april. Ga naar de website van de Alliantie, zoek de woning op en klik op de knop 'Reageren'. Volg daarna stap voor stap de instructies op het scherm.
Wat een heerlijke plek om te wonen aan het water!
Luxe, comfort én een toplocatie in Vathorst komen samen in dit fraaie 4-kamerappartement. De riante woonkamer met open hoekkeuken volgt speels de vorm van het gebouw en zorgt voor een ruimtelijk gevoel. Via de dubbele deuren in de woonkamer loop je zo het royale balkon op. Het balkon ligt op het noordoosten, waardoor je optimaal geniet van het buitenleven. Het appartement beschikt over drie volwaardige slaapkamers, een ruime badkamer en een apart toilet. Je wasmachine kun je kwijt in de inpandige berging. Gelegen aan het prachtige Bronpark in Vathorst is dit zonder twijfel een heerlijke plek om thuis te komen. Het appartement bevindt zich op de zesde verdieping van 'Het Waterhart'.
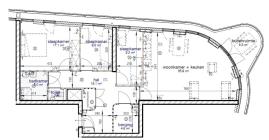
Begane grond:
Op de begane grond vind je een afgesloten entree met bellentableau en postvakken. Daarnaast zijn er zowel een trap als een lift aanwezig die je naar alle verdiepingen brengen. Ook beschik je over een privéberging, ideaal voor je fiets en extra spullen.
6e verdieping:
Via de ruime entree kom je in de royale U-vormige hal, die toegang geeft tot alle vertrekken. De lichte en ruime woonkamer valt direct op door de grote raampartijen en biedt via dubbele deuren toegang tot het balkon op het noordoosten. De open keuken is modern uitgevoerd en voorzien van diverse inbouwapparatuur, zoals een inductiekookplaat, afzuigkap, koelkast met vriesvak, combi-oven en vaatwasser. Het appartement beschikt over drie goed bemeten slaapkamers, elk met voldoende daglicht. De volledig betegelde badkamer is netjes afgewerkt en voorzien van een inloopdouche, dubbele wastafel en een handdoekradiator. In de hal vind je een praktische inpandige berging met aansluiting voor de wasmachine en een aparte plek voor de WTW-installatie en warmtepomp. Ook de meterkast is vanuit de hal bereikbaar.
Bijzonderheden:
- Riante woonkamer met open keuken.
- Drie volwaardige slaapkamers.
- Prachtig uitzicht over het Bronpark, balkon gelegen op het noordoosten.
- Het appartement is voorzien van vloerverwarming- en koeling.
- Gasloos en energielabel A.
- Eigen (fietsen)berging op de begane grond
- Minimale huurperiode 1 jaar.
- Voorbehoud gunning verhuurder.
- Geen woningdelers.
- Garantstelling door derden is niet mogelijk.
- Direct beschikbaar.
- Ter overname (geen kosten): vloerafwerking.
- Voorrang sociale huurders gemeente Amersfoort van woningcorporaties De Alliantie, Portaal en Omnia Wonen.
Huurprijs: € 1.645,- per maand
Servicekosten ca. € 62,39 per maand
Gezamenlijk SV loon is minimaal 45 keer de kale huurprijs (€ 76.846,-)
Waar mogelijk geeft de Alliantie huurders van de Alliantie voorrang. De Alliantie behoudt altijd het recht om de woning te gunnen aan de meest geschikte kandidaat.
- Een huurovereenkomst wordt aangegaan voor ten minste één jaar en wordt vanaf dan verlengd voor onbepaalde tijd. Na de minimale termijn van één jaar bedraagt de opzegtermijn voor de huurder één maand.
- De huurperiode kan op elke dag van de maand ingaan, dit hoeft niet perse de 1e van de maand te zijn. De Alliantie bepaalt de ingangsdatum van de huur: deze zal over het algemeen niet later ingaan dan een week na de toewijzing/bezichtiging.
In aanmerking komen voor deze woning?
Via de website IK-ZOEK.de-alliantie.nl kun je reageren op de betreffende woning. Je kunt reageren door een Qii huurpaspoort aan te maken. De verhuurder kijkt na einde inschrijfdatum wie er in aanmerking komen voor een bezichtiging. Je hoeft bij het makelaarskantoor geen papieren in te vullen, alles gaat via de website IK-ZOEK.de-alliantie.nl via het Qii huurpaspoort. Inschrijven is mogelijk tot en met donderdag 23 april.
Wij moeten vaak een selectie maken uit alle reacties. Alleen indien je binnen de selectie valt, nemen wij contact met je op.
| Overdracht | |
|---|---|
| Huurprijs | € 1.645 per maand |
| Servicekosten | € 62 per maand |
| Beschikbaarheid | Te huur |
| Bouw | |
|---|---|
| Type | Portiekwoning |
| Bouwjaar | 2014 |
| Indeling | |
|---|---|
| Oppervlakte | 105 m2 |
| Inhoud | 335 m3 |
| Aantal kamers | 4 |
Interesse?
Reageren op een woning doe je via de knop "reageren".
Heb je vragen? Neem dan contact met ons op.
Top woningen
Reageren met Qii
Qii is een snelle manier om op een woning te reageren. Je hoeft niet meer zelf gegevens bij de belastingdienst, overheid of UWV te verzamelen, Qii maakt dit binnen tien minuten mogelijk in een beveiligde omgeving. Gratis, makkelijk en extra veilig dus! Ook wij kunnen zo sneller bij je terugkomen met een reactie.
Meer informatie vind je op: Wat is Qii
Blijf op de hoogte
Wil je tijdens je zoektocht de nieuwste woningen in je mail ontvangen?
Bezichtiging plannen
Vul het contactformulier in om een bezichtiging te plannen. Voor vragen kan je bellen, je wordt gevraagd naar de objectcode. Bel en tik de objectcode in, we verbinden je direct door met de makelaar die het aanspreekpunt is voor dit object.
Makelaar
088 - 668 28 12
Objectcode: 88038
Bedankt voor het invullen van het bezichtigingsformulier. Wij nemen direct contact met je op.
{{ error }}
Contact
Reageren op een woning, bedrijfsruimte of parkeerplek doe je via de knop Reageren of Bezichtiging. Heb je vragen? Vul dit formulier in, dan nemen wij contact met je op.
Bedankt! We nemen zo spoedig mogelijk contact met je op.
{{ error }}
Bezoek het open huis!
Tijdens het open huis kun je deze woning vrijblijvend bezichtigen. De woning is geopend op het aangegeven tijdstip.
Makelaar
088 - 668 28 12
Bedankt! We nemen zo spoedig mogelijk contact met je op.
{{ error }}